長谷部第1ビル 6階 601
物件概要
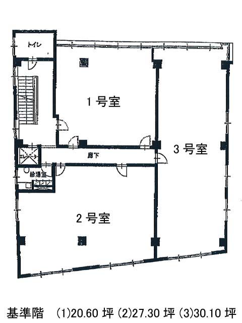
長谷部第1ビルのテナント募集中区画
| 階数 | 面積 | 賃料(共益費含む) | 保証金 | 入居可能日 | 検討リスト | 詳細 |
|---|---|---|---|---|---|---|
| 6 | 20.60坪 | 313,500円/月(15,219円/坪) | 156万円 | 2025年12月上旬 |
…新着物件
アクセス
長谷部第1ビルの物件情報
長谷部第1ビル(渋谷区広尾)は広尾駅(2番出口)から徒歩7分の賃貸オフィスです。長谷部第1ビルは広尾駅(2番出口)の他に恵比寿駅(東口)徒歩12分で利用も可能です。

