6階 602は現在募集がありません
1フロア募集区画あり

長谷部第1ビル 6階 602

前の写真 次の写真

物件概要

物件番号

163-00011-150

物件名

長谷部第1ビル

所在地

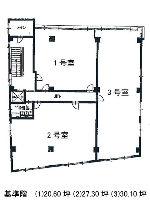
面積

27.30坪

賃料(共益費含)


入居日

募集終了

保証金

礼金

更新料

償却費

竣工

1969年10月

構造

RC

規模

地上6階

トイレ

男女別

空調

個別空調

エレベーター

セキュリティ

駐車場

耐震

旧耐震基準

基準階天井高

2460mm

空室延床面積

20.60坪

最寄駅

情報更新日

2025/10/27

長谷部第1ビルのテナント募集中区画

階数 面積 賃料(共益費含む) 保証金 入居可能日 検討リスト 詳細
6 20.60坪 313,500円/月(15,219円/坪) 156万円 2025年12月上旬
…新着物件

アクセス

長谷部第1ビルの物件情報

長谷部第1ビル(渋谷区広尾)は広尾駅(2番出口)から徒歩7分の賃貸オフィスです。
長谷部第1ビルは広尾駅(2番出口)の他に恵比寿駅(東口)徒歩12分で利用も可能です。

近隣のエリア・駅から探す