7階は現在募集がありません
小田急初台ビル 7階
物件概要
小田急初台ビルのテナント募集中区画
現在、空室がございません。
アクセス
小田急初台ビルの物件情報
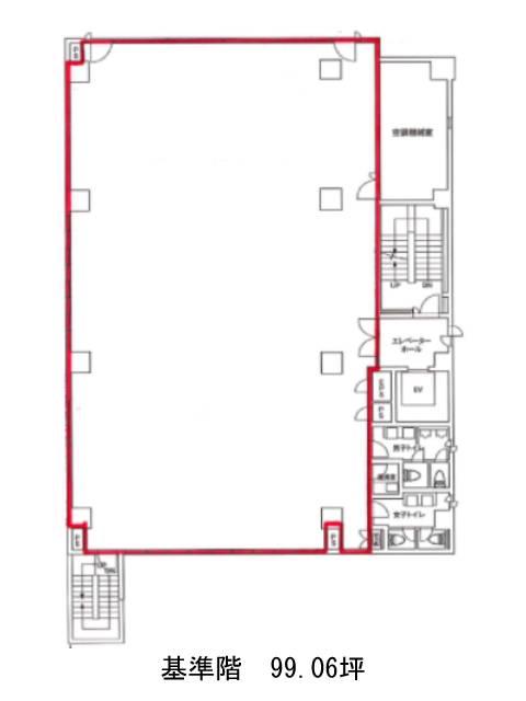
小田急初台ビル(渋谷区初台)は初台駅(出口1)から徒歩3分の賃貸オフィスです。1986年竣工、新耐震基準を満たす地上6階建てです。甲州街道沿い、初台交差点付近に立地します。グレーを基調とした重厚感のある外観で、主な設備としてエレベーター1基、個別空調、OAフロア、男女別トイレ、機械式駐車場を備えています。貸室はすっきりとした整形オフィスで、区画によっては柱がありますが、端に寄っているためレイアウトの自由度は高いでしょう。また、2011年にリニューアル工事を実施していますので、水回り等の共有部も綺麗です。隣のビルにコンビニがあり、向かいのオペラシティには金融機関、郵便局、書店、薬局や多くの飲食店が営業していますので、様々な場面で活用できそうです。小田急初台ビルは初台駅(出口1)の他に参宮橋駅(出口2)徒歩11分、新宿駅(8番出口)徒歩13分で利用も可能です。

