は現在募集がありません
(仮称)神宮前3丁目新築PJ
物件概要
(仮称)神宮前3丁目新築PJのテナント募集中区画
現在、空室がございません。
アクセス
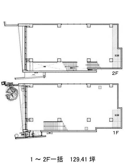
(仮称)神宮前3丁目新築PJの物件情報
(仮称)神宮前3丁目新築PJ(渋谷区神宮前)は明治神宮前駅(出口1)から徒歩5分の賃貸オフィスです。2022年に竣工したばかりの新しい物件です。コンクリートの壁に、前面が淡いブルーのガラスで覆われた外観からは、洗練された印象を受けます。長方形の室内にはレイアウトを邪魔する柱はなく、効率的な配置ができそうです。また、天井高の高い設計ですので、基準階面積約45坪のコンパクトな室内でも開放感が感じられ快適でしょう。その他設備面は、この階数には珍しくエレベーターが1基設置され、光回線にも対応しています。セキュリティには機械警備が導入されていますので、安全性も高いといえます。(仮称)神宮前3丁目新築PJは明治神宮前駅(出口1)の他に原宿駅(竹下口)徒歩7分、表参道駅(A2番出口)徒歩10分で利用も可能です。

