3階は現在募集がありません
HIサンロード原宿 3階
物件概要
HIサンロード原宿のテナント募集中区画
現在、空室がございません。
アクセス
HIサンロード原宿の物件情報
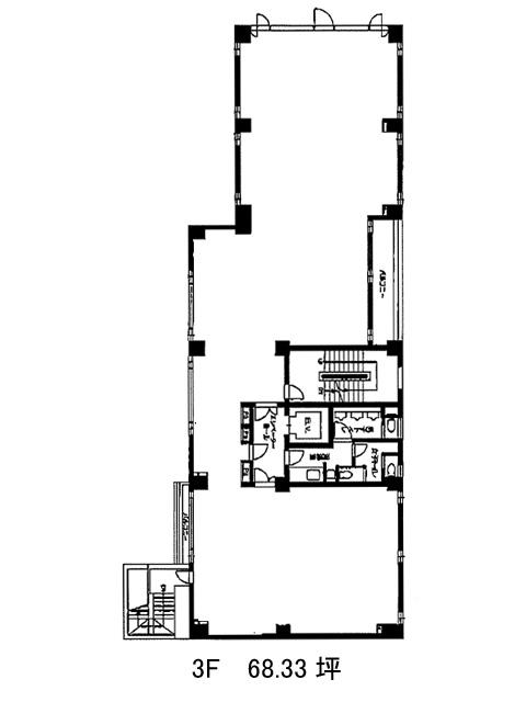
HIサンロード原宿(渋谷区神宮前)は明治神宮前駅(出口1)から徒歩7分の賃貸オフィスです。明治通りを一本東へ入ったところにある、地上3階建てのビルです。ベージュの壁に前面に大きなガラス窓を使用し、窓枠に茶色を使用するなどと少しレトロな雰囲気を出しているオシャレな外観です。フロア貸しとワンフロアを二部屋に分けている部屋があります。フロア貸しは68坪ほど、分割貸しは25坪ほどの部屋と48坪ほどの部屋の2種類あります。いづれも、給湯室と男女別トイレが共用部に設置されています。前面道路が幅が広くないので交通量もそれほど多くなく、落ち着いた環境です。横が生活道路になっているので、ビル密集地でありながら圧迫感もありません。HIサンロード原宿は明治神宮前駅(出口1)の他に原宿駅(竹下口)徒歩8分、北参道駅(2番出口)徒歩11分で利用も可能です。

