4階は現在募集がありません
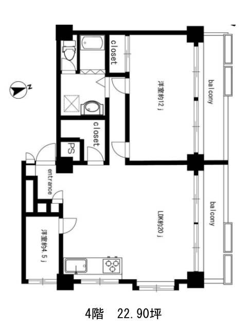
チサンマンション原宿 4階
物件概要
チサンマンション原宿のテナント募集中区画
現在、空室がございません。
アクセス
チサンマンション原宿の物件情報
チサンマンション原宿(渋谷区神宮前)は北参道駅(2番出口)から徒歩8分の賃貸オフィスです。チサンマンション原宿は北参道駅(2番出口)の他に原宿駅(竹下口)徒歩10分、明治神宮前駅(出口1)徒歩10分で利用も可能です。

