1階は現在募集がありません

松尾ビル 1階

前の写真 次の写真

物件概要

物件番号

170-00070-10

物件名

松尾ビル

所在地

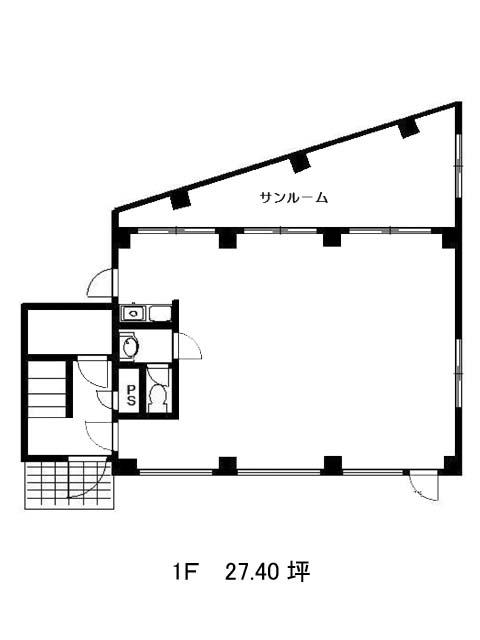
面積

27.40坪

賃料(共益費含)


入居日

募集終了

保証金

礼金

更新料

償却費

竣工

1983年3月

構造

S造

規模

地上3階

トイレ

男女共用

空調

エレベーター

セキュリティ

駐車場

耐震

新耐震基準

基準階天井高

空室延床面積

最寄駅

情報更新日

2025/08/25

松尾ビルのテナント募集中区画

現在、空室がございません。

アクセス

松尾ビルの物件情報

松尾ビル(渋谷区神宮前)は北参道駅(2番出口)から徒歩8分の賃貸オフィスです。
松尾ビルは北参道駅(2番出口)の他に国立競技場駅(A3番出口)徒歩11分、原宿駅(竹下口)徒歩11分で利用も可能です。

近隣のエリア・駅から探す