4階は現在募集がありません
EA HARAJUKU Tower 4階
物件概要
EA HARAJUKU Towerのテナント募集中区画
現在、空室がございません。
アクセス
EA HARAJUKU Towerの物件情報
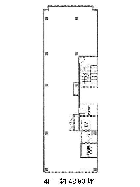
EA HARAJUKU Tower(渋谷区神宮前)は原宿駅(竹下口)から徒歩1分の賃貸オフィスです。地上7階地下1階建S造、2015年竣工のビルです。1階にシューズショップが入り、目印としてわかりやすいでしょう。青い壁面が爽やかな印象の外観です。貸室は50坪前後のものがそろい、中規模の事務所をお探しの企業様におすすめです。間取りは長方形で、水回りなどの共用部が一箇所に集中しており使い勝手がよいでしょう。EV1基・個別空調・バルコニー・非常階段1箇所といった設備仕様をしています。EA HARAJUKU Towerは原宿駅(竹下口)の他に明治神宮前駅(2番出口)徒歩3分、北参道駅(2番出口)徒歩12分で利用も可能です。

