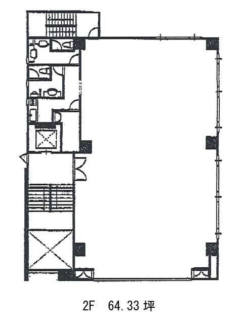
2階は現在募集がありません
四谷荒木町スクエア 2階
物件概要
四谷荒木町スクエアのテナント募集中区画
現在、空室がございません。
アクセス
四谷荒木町スクエアの物件情報
四谷荒木町スクエア(新宿区荒木町)は曙橋駅(A4番出口)から徒歩6分の賃貸オフィスです。1988年竣工、グレーを基調としたタイル張りでスタイリッシュな外観が印象的な建物です。2016年12月にリニューアル工事が実施されており、ビルメンテナンスが行き届いています。木目調でデザインされたエントランスは高級感を感じさせ、エレベーター1基設置されております。フリーアクセスの床を採用していますのでフレキシブルにレイアウトを組むことができます。個別空調、男女別トイレ設置。周辺は落ち着いたエリアですが、徒歩圏内にはコンビニエやATMがあって便利です。四谷荒木町スクエアは曙橋駅(A4番出口)の他に四谷三丁目駅(3番出口)徒歩6分、四ツ谷駅(3番出口)徒歩9分で利用も可能です。

