1-2は現在募集がありません
三優ビル 1-2
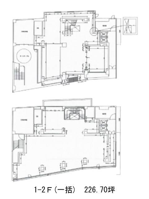
物件概要
三優ビルのテナント募集中区画
現在、空室がございません。
アクセス
三優ビルの物件情報
三優ビル(新宿区高田馬場)は高田馬場駅(1番出口)から徒歩2分の賃貸オフィスです。地上8階地下1階建、1975年竣工のビルです。前面道路側の壁面が斜めにカーブしており特徴的な外観をしています。設備仕様として、EV2基・個別空調・男女別トイレ・非常階段2箇所があります。貸室は事務所の他、店舗(飲食は不可)としての利用が可能となり、多様なビジネスに対応できるでしょう。早稲田通り沿いに建ち、周辺は予備校やオフィスビルが建ち賑わいのあるエリアです。徒歩圏内に銀行・コンビニ・飲食店があり便利にご利用頂けるでしょう。三優ビルは高田馬場駅(1番出口)の他に下落合駅(南口)徒歩12分、西早稲田駅(1番出口)徒歩13分で利用も可能です。

