1-2は現在募集がありません
インペリアル四ツ谷(戸建) 1-2
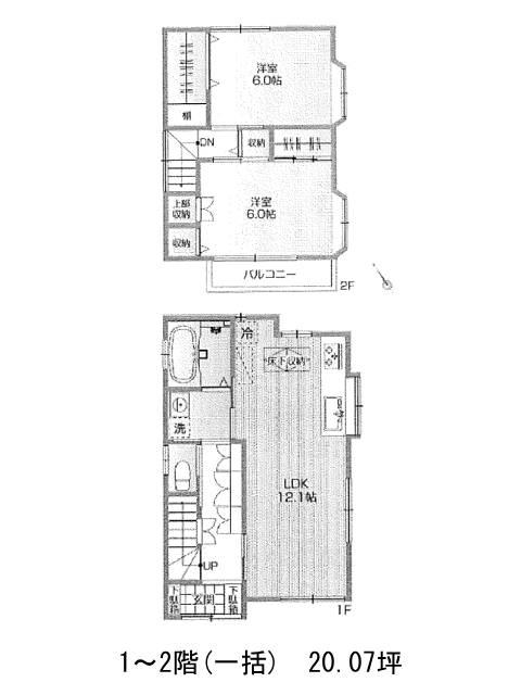
物件概要
インペリアル四ツ谷(戸建)のテナント募集中区画
現在、空室がございません。
アクセス
インペリアル四ツ谷(戸建)の物件情報
インペリアル四ツ谷(新宿区四谷坂町)は曙橋駅(A4番出口)から徒歩6分の賃貸オフィスです。インペリアル四ツ谷は曙橋駅(A4番出口)の他に四谷三丁目駅(3番出口)徒歩10分、四ツ谷駅(3番出口)徒歩10分で利用も可能です。

