3階は現在募集がありません
四谷国際ビル 3階
物件概要
四谷国際ビルのテナント募集中区画
現在、空室がございません。
アクセス
四谷国際ビルの物件情報
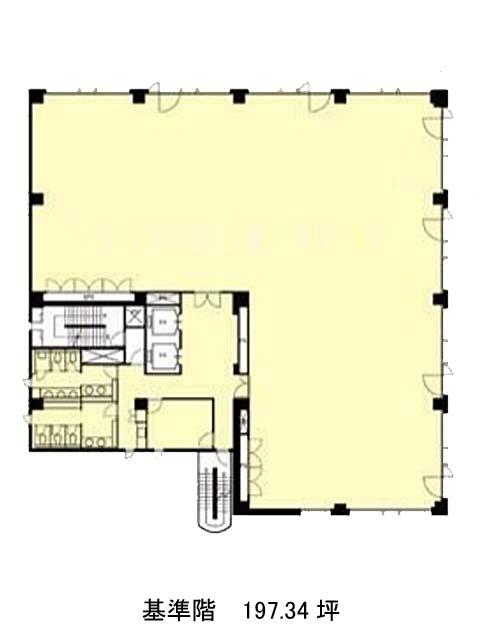
四谷国際ビル(新宿区四谷)は四谷三丁目駅(1番出口)から徒歩3分の賃貸オフィスです。1999年竣工。外観はベージュを基調とした石張りで、非常に重厚感のある建物となっております。広々とした貸室内は各方面の窓から良く太陽光が良く入ってきて明るく、見通しもよく、レイアウトは組みやすい形です。フリーアクセスを採用しており、配線類はスッキリとさせることができます。給湯室やトレイなどの内装も綺麗に保たれていて清潔感があり、また女性用のトイレに収納スペースが設けられているので便利です。駐車場が併設されているため、車の利用もしやすいでしょう。四谷国際ビルは四谷三丁目駅(1番出口)の他に新宿御苑前駅(2番出口)徒歩8分、曙橋駅(A1番出口)徒歩10分で利用も可能です。

