5階は現在募集がありません
宮子ビル 5階
物件概要
宮子ビルのテナント募集中区画
現在、空室がございません。
アクセス
宮子ビルの物件情報
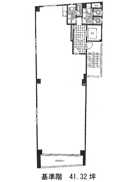
宮子ビル(新宿区四谷)は四谷三丁目駅(3番出口)から徒歩2分の賃貸オフィスです。新宿通り沿いにある、7階建てのビルです。基準階は41.32坪の長方形の間取りで、無柱空間でレイアウトしやすくなっています。給湯設備は室内に、トイレは男女別で共用部に設置されています。隣接する荒木町にある、車力門通りと杉大門通りには、飲食店が建ち並んでいます。四谷はもともと、江戸時代以前は何もない、すすき野原でした。1634年、江戸城西北に外堀を設置することになり、移転を余儀なくされた麹町地区の寺社群が四谷地区に移転したことで、町が発展したという歴史があります。宮子ビルは四谷三丁目駅(3番出口)の他に曙橋駅(A1番出口)徒歩7分、四ツ谷駅(2番出口)徒歩11分で利用も可能です。

