3階は現在募集がありません
ワールド四谷ビル 3階
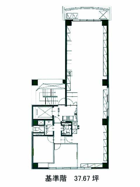
物件概要
ワールド四谷ビルのテナント募集中区画
現在、空室がございません。
アクセス
ワールド四谷ビルの物件情報
ワールド四谷ビル(新宿区四谷)は四谷三丁目駅(2番出口)から徒歩3分の賃貸オフィスです。ワールド四谷ビルは四谷三丁目駅(2番出口)の他に新宿御苑前駅(2番出口)徒歩8分、曙橋駅(A1番出口)徒歩10分で利用も可能です。

