8階は現在募集がありません
西新宿TKビル 8階
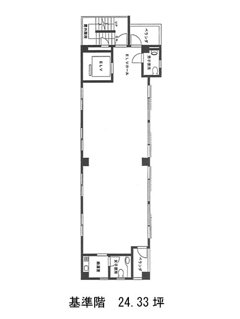
物件概要
西新宿TKビルのテナント募集中区画
現在、空室がございません。
アクセス
西新宿TKビルの物件情報
西新宿TKビル(新宿区西新宿)は西新宿駅(1番出口)から徒歩4分の賃貸オフィスです。西新宿TKビルは西新宿駅(1番出口)の他に都庁前駅(E4番出口)徒歩7分、中野坂上駅(A1番出口)徒歩10分で利用も可能です。

