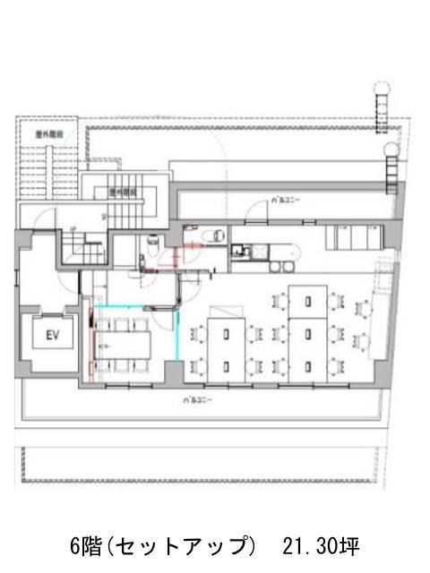
6階は現在募集がありません
サクラフロント一番町 6階
物件概要
サクラフロント一番町のテナント募集中区画
現在、空室がございません。
アクセス
サクラフロント一番町の物件情報
サクラフロント一番町(千代田区一番町)は半蔵門駅(4番出口)から徒歩2分の賃貸オフィスです。サクラフロント一番町は半蔵門駅(4番出口)の他に麹町駅(3番出口)徒歩8分、市ヶ谷駅(A3番出口)徒歩12分で利用も可能です。

