共同ビル(一番町)のテナント募集中区画
| 階数 | 面積 | 賃料(共益費含む) | 保証金 | 入居可能日 | 検討リスト | 詳細 |
|---|---|---|---|---|---|---|
| 3 | 174.62坪 | 応相談(応相談) | 応相談 | 即 |
…新着物件
アクセス
共同ビル(一番町)の物件情報
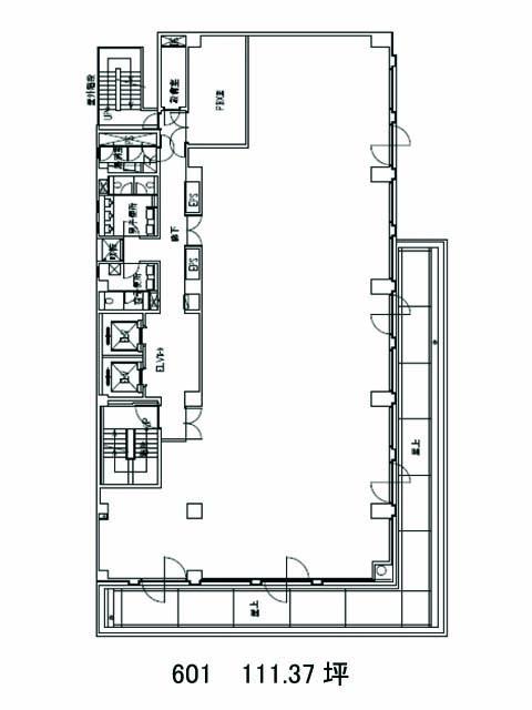
共同ビル(一番町)(千代田区一番町)は半蔵門駅(5番出口)から徒歩4分の賃貸オフィスです。番長中央通りに面した角地にあるビルです。外観はオフホワイトの石材タイルをベースとした重厚感のあるデザインが印象的な物件です。1987年竣工ですが、2009年にリニューアル工事を行っているため古さを感じさせません。室外には男女別のトイレがあるので快適です。また、間取りはほぼ長方形で床はフリーアクセスのためレイアウトはしやすいでしょう。設備としては機械式の駐車場が併設されています。大通りまで出ると通り沿いに飲食店、コンビニが多数あるのでランチ時に困ることはないでしょう。共同ビル(一番町)は半蔵門駅(5番出口)の他に麹町駅(6番出口)徒歩8分、市ヶ谷駅(A3番出口)徒歩9分で利用も可能です。

