5階 501は現在募集がありません
1フロア募集区画あり

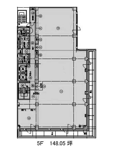
共同ビル(一番町) 5階 501

前の写真 次の写真

物件概要

物件番号

377-00036-21

物件名

共同ビル(一番町)

所在地

面積

148.05坪

賃料(共益費含)


入居日

募集終了

保証金

礼金

更新料

償却費

竣工

1987年11月

構造

RC

規模

地上6階/地下1階

トイレ

男女別

空調

個別空調

エレベーター

セキュリティ

駐車場

耐震

新耐震基準

基準階天井高

空室延床面積

174.62坪

最寄駅

情報更新日

2025/12/02

共同ビル(一番町)のテナント募集中区画

階数 面積 賃料(共益費含む) 保証金 入居可能日 検討リスト 詳細
3 174.62坪 応相談(応相談) 応相談
…新着物件

アクセス

共同ビル(一番町)の物件情報

共同ビル(一番町)(千代田区一番町)は半蔵門駅(5番出口)から徒歩4分の賃貸オフィスです。
番長中央通りに面した角地にあるビルです。外観はオフホワイトの石材タイルをベースとした重厚感のあるデザインが印象的な物件です。1987年竣工ですが、2009年にリニューアル工事を行っているため古さを感じさせません。室外には男女別のトイレがあるので快適です。また、間取りはほぼ長方形で床はフリーアクセスのためレイアウトはしやすいでしょう。設備としては機械式の駐車場が併設されています。大通りまで出ると通り沿いに飲食店、コンビニが多数あるのでランチ時に困ることはないでしょう。
共同ビル(一番町)は半蔵門駅(5番出口)の他に麹町駅(6番出口)徒歩8分、市ヶ谷駅(A3番出口)徒歩9分で利用も可能です。

近隣のエリア・駅から探す