8階は現在募集がありません
一番町東急ビル 8階


物件概要
一番町東急ビルのテナント募集中区画
現在、空室がございません。
アクセス
一番町東急ビルの物件情報
一番町東急ビル(千代田区一番町)は半蔵門駅(出口2)から徒歩1分の賃貸オフィスです。
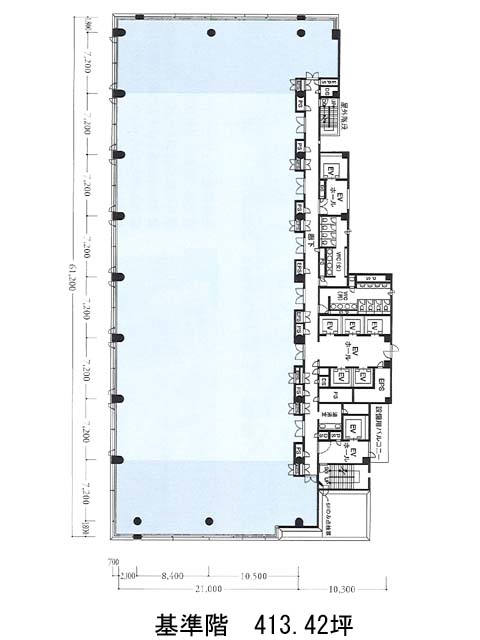
2002年竣工、半蔵門駅通り(永井坂)に面しています。外観は格調高いグレーの石彫。温かみのあるブラウンを基調としたエントランスデザインは他で見られない魅力があり、ゲストにとっても好印象でしょう。エレベーターは乗用5基にくわえ、人荷用も備えられています。室内は明るく、柱が壁に寄った整形オフィスですので、レイアウトがしやすいでしょう。床はOAフロア、空調はゾーンごとに調節可能で、室外のトイレは男女別です。セキュリティはカード式の機械警備でしっかり管理されています。周辺は穏やかな雰囲気で、近くに郵便局、薬局、コンビニや、軽食のとれる飲食店が複数ありますので、ランチなどに活用いただけます。
一番町東急ビルは半蔵門駅(出口2)の他に麹町駅(3番出口)徒歩8分、市ヶ谷駅(A3番出口)徒歩10分で利用も可能です。