4階は現在募集がありません
相模屋第3ビル 4階
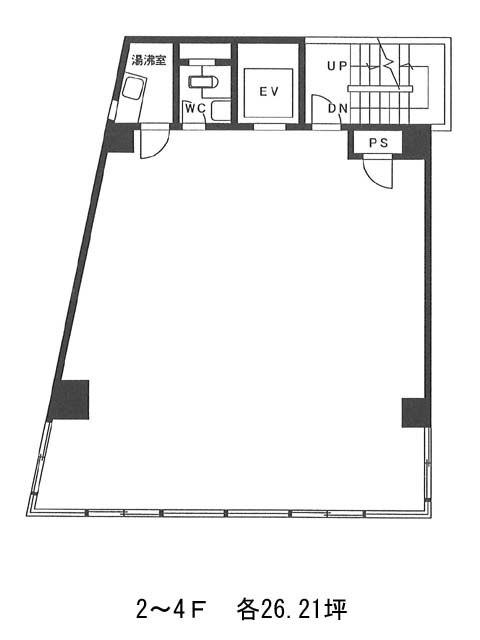
物件概要
相模屋第3ビルのテナント募集中区画
現在、空室がございません。
アクセス
相模屋第3ビルの物件情報
相模屋第3ビル(千代田区一番町)は半蔵門駅(出口1)から徒歩4分の賃貸オフィスです。一番町は大使館や学校が多く、閑静なエリアです。相模屋第3ビルの外観はダークグレーのガラスと白タイルの組み合わせでトラディショナルな雰囲気を醸し出しており、土地柄に合う落ち着いた印象のビルです。
ビルは半蔵門駅と麹町駅の中間地点に位置しており、どちらの駅も付近にコンビニがあるため、通勤途中の買い物に便利です。また一番町郵便局が隣接しておりますので、事務関係の作業がスムーズに行えそうです。相模屋第3ビルは半蔵門駅(出口1)の他に麹町駅(3番出口)徒歩5分、市ヶ谷駅(A3番出口)徒歩11分で利用も可能です。

