宮中ビル 3階
物件概要
物件番号
383-00265-10物件名
宮中ビル所在地
- 東京都千代田区岩本町2-1-17
- アクセスマップ
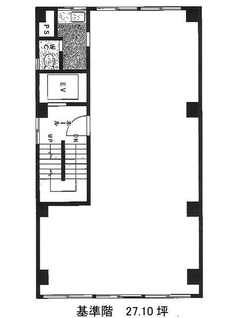
面積
27.10坪賃料(共益費含)
月額327,910円(12,100円/坪)
入居日
即保証金
1,463,400円礼金
なし更新料
新1ケ月償却費
2ケ月竣工
1968年12月構造
SRC規模
地上7階トイレ
男女共用空調
個別空調エレベーター
有セキュリティ
有駐車場
無耐震
旧耐震基準基準階天井高
空室延床面積
27.10坪情報更新日
2025/10/28宮中ビルのテナント募集中区画
| 階数 | 面積 | 賃料(共益費含む) | 保証金 | 入居可能日 | 検討リスト | 詳細 |
|---|---|---|---|---|---|---|
| 3 | 27.10坪 | 327,910円/月(12,100円/坪) | 146万円 | 即 |
…新着物件
アクセス
宮中ビルの物件情報
宮中ビル(千代田区岩本町)は小伝馬町駅(出口2)から徒歩5分の賃貸オフィスです。宮中ビルは小伝馬町駅(出口2)の他に岩本町駅(A5番出口)徒歩6分、新日本橋駅(8番出口)徒歩6分で利用も可能です。

