3階は現在募集がありません
JS市ヶ谷ビル 3階
物件概要
JS市ヶ谷ビルのテナント募集中区画
現在、空室がございません。
アクセス
JS市ヶ谷ビルの物件情報
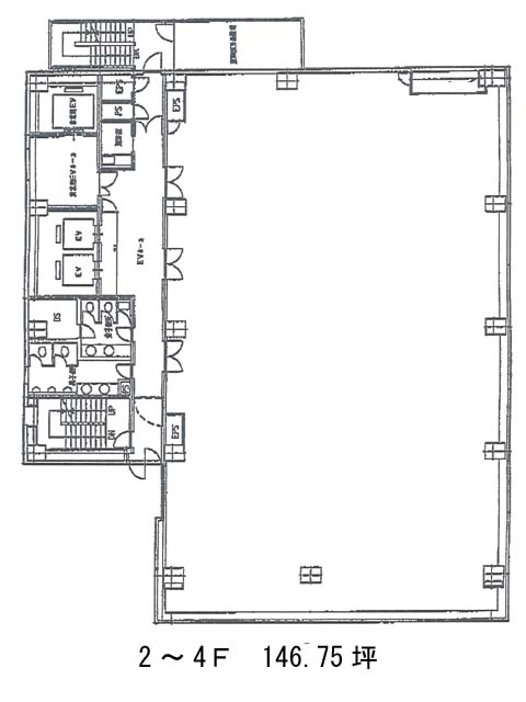
JS市ヶ谷ビル(千代田区五番町)は市ヶ谷駅(3番出口)から徒歩2分の賃貸オフィスです。1991年竣工の地上11階建てのビルで、新耐震基準に適合しています。エントランスホールは大理石がふんだんに使用され、格調高い趣がございます。基準階面積は約145坪、フリーアクセス床となっているので、配線しやすく、綺麗な長方形な貸室になっておりますので、自由なレイアウトを組んでいただけます。男女別のトイレ設置。徒歩圏内に飲食店やスーパーマーケット、郵便局がございますので、利便性が高いです。JS市ヶ谷ビルは市ヶ谷駅(3番出口)の他に麹町駅(6番出口)徒歩5分、四ツ谷駅(麹町口)徒歩9分で利用も可能です。

