林五ビルのテナント募集中区画
| 階数 | 面積 | 賃料(共益費含む) | 保証金 | 入居可能日 | 検討リスト | 詳細 |
|---|---|---|---|---|---|---|
| 5 | 56.96坪 | 応相談(応相談) | 応相談 | 2025年12月下旬 |
…新着物件
アクセス
林五ビルの物件情報
林五ビル(千代田区五番町)は市ヶ谷駅(4番出口)から徒歩3分の賃貸オフィスです。白を基調としたタイル貼りの外観が印象的な本物件は、視認性の高いガラスブロックがアクセントになっており、シンプルながらも洗練された印象を与えます。最寄り駅からのアクセスも良好で、訪問時の案内もしやすい立地です。
1階には駐車場があり、来客時の目印にもなりやすく便利。エントランスは明るく清潔感があり、初めて訪れる方にも好印象を与える仕様です。
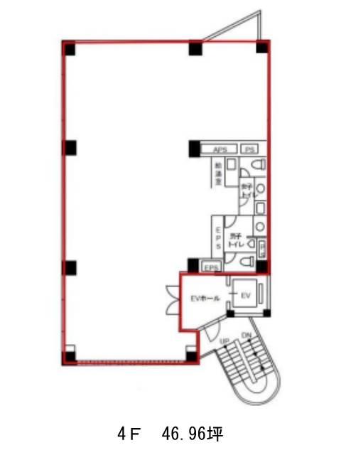
募集区画は1フロア約57坪。長方形に近い整形でレイアウト効率が高く、OAフロアや男女別トイレも完備されているため、日々の業務も快適に行えます。機械警備によるセキュリティも整っており、安心して利用できる点もポイントです。林五ビルは市ヶ谷駅(4番出口)の他に麹町駅(6番出口)徒歩8分、四ツ谷駅(麹町口)徒歩9分で利用も可能です。

