9階 901は現在募集がありません
2フロア募集区画あり

麹町クリスタルシティ東館 9階 901

前の写真 次の写真

物件概要

物件番号

388-00187-100

物件名

麹町クリスタルシティ東館

所在地

面積

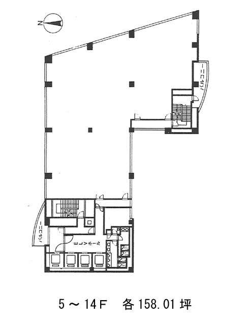
158.01坪

賃料(共益費含)


入居日

募集終了

保証金

礼金

更新料

償却費

竣工

1992年9月

構造

SRC

規模

地上14階/地下2階

トイレ

男女別

空調

個別空調

エレベーター

セキュリティ

駐車場

耐震

新耐震基準

基準階天井高

2600mm

空室延床面積

271.31坪

最寄駅

情報更新日

2026/01/15

麹町クリスタルシティ東館のテナント募集中区画

階数 面積 賃料(共益費含む) 保証金 入居可能日 検討リスト 詳細
3 113.29坪 応相談(応相談) 応相談 2026年4月上旬
11 158.02坪 応相談(応相談) 応相談 2026年2月上旬
…新着物件

アクセス

麹町クリスタルシティ東館の物件情報

麹町クリスタルシティ東館(千代田区麹町)は麹町駅(3番出口)から徒歩1分の賃貸オフィスです。
駅から直結されたビルの為、利便性抜群でございます。1992年竣工、新耐震基準を満たした地上14階建てのオフィスビルです。エレベーター4基設置。基準階面積は約150坪で、フリーアクセス床となっているので、配線しやすいフロアです。個別空調、男女別トイレ設置。有人警備と機械警備が併用されているため、セキュリティ面でも大変安心です。また駐車場が併設されている為、社用車を利用する場合も便利です。徒歩圏内にはカフェや飲食店、ドラッグストアがございますので、利便性が高いです。
麹町クリスタルシティ東館は麹町駅(3番出口)の他に半蔵門駅(2番出口)徒歩6分、永田町駅(9b番出口)徒歩9分で利用も可能です。

近隣のエリア・駅から探す