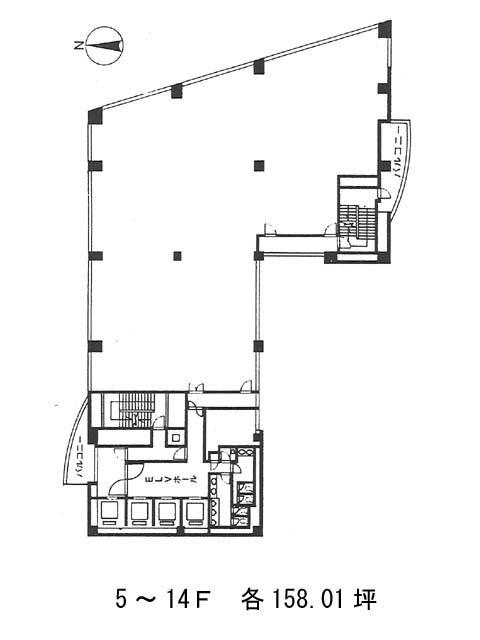
麹町クリスタルシティ東館のテナント募集中区画
| 階数 | 面積 | 賃料(共益費含む) | 保証金 | 入居可能日 | 検討リスト | 詳細 |
|---|---|---|---|---|---|---|
| 3 | 113.29坪 | 応相談(応相談) | 応相談 | 2026年4月上旬 | ||
| 11 | 158.02坪 | 応相談(応相談) | 応相談 | 2026年2月上旬 |
…新着物件
アクセス
麹町クリスタルシティ東館の物件情報
麹町クリスタルシティ東館(千代田区麹町)は麹町駅(3番出口)から徒歩1分の賃貸オフィスです。駅から直結されたビルの為、利便性抜群でございます。1992年竣工、新耐震基準を満たした地上14階建てのオフィスビルです。エレベーター4基設置。基準階面積は約150坪で、フリーアクセス床となっているので、配線しやすいフロアです。個別空調、男女別トイレ設置。有人警備と機械警備が併用されているため、セキュリティ面でも大変安心です。また駐車場が併設されている為、社用車を利用する場合も便利です。徒歩圏内にはカフェや飲食店、ドラッグストアがございますので、利便性が高いです。麹町クリスタルシティ東館は麹町駅(3番出口)の他に半蔵門駅(2番出口)徒歩6分、永田町駅(9b番出口)徒歩9分で利用も可能です。

