6階は現在募集がありません
1フロア募集区画あり
麹町セントラルビル/C-WORK 6階
物件概要
物件番号
388-00188-70物件名
麹町セントラルビル/C-WORK所在地
- 東京都千代田区麹町2-2-4
- アクセスマップ
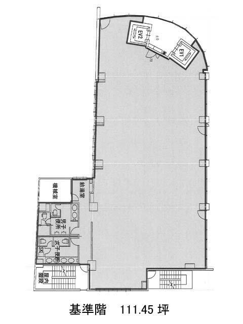
面積
111.45坪賃料(共益費含)
−入居日
募集終了保証金
−礼金
−更新料
−償却費
−竣工
1993年2月構造
SRC規模
地上9階/地下2階トイレ
男女別空調
個別空調エレベーター
有セキュリティ
有駐車場
有耐震
新耐震基準基準階天井高
2480mm空室延床面積
112.46坪情報更新日
2025/11/05麹町セントラルビル/C-WORKのテナント募集中区画
| 階数 | 面積 | 賃料(共益費含む) | 保証金 | 入居可能日 | 検討リスト | 詳細 |
|---|---|---|---|---|---|---|
| 2 | 112.46坪 | 応相談(応相談) | 応相談 | 即 |
…新着物件
アクセス
麹町セントラルビル/C-WORKの物件情報
麹町セントラルビル/C-WORK(千代田区麹町)は半蔵門駅(3a番出口)から徒歩2分の賃貸オフィスです。1993年竣工で9階建て、丸みを帯びたフォルムが特徴的なオフィスビルです。新耐震基準を満たしており、安心してご入居いただけます。貸室内はフリーアクセスの床を採用しているので、OA機器などの配線を気にする心配はございません。また、フロア内に支柱が無く整形なのでデスク等の配置も自由に実施することができます。男女別のトイレ設置です。徒歩圏内に銀行、郵便局、コンビニエンスストアがございます。麹町セントラルビル/C-WORKは半蔵門駅(3a番出口)の他に麹町駅(1番出口)徒歩4分、永田町駅(9b番出口)徒歩10分で利用も可能です。

