3階は現在募集がありません
1フロア募集区画あり

三番町ABCビル 3階

前の写真 次の写真

物件概要

物件番号

390-00014-30

物件名

三番町ABCビル

所在地

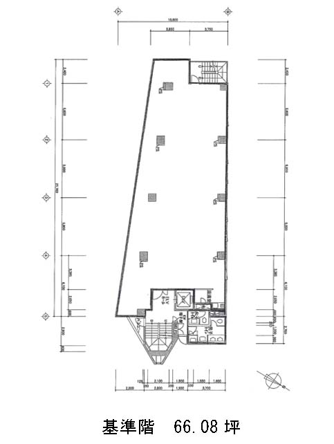
面積

66.08坪

賃料(共益費含)


入居日

募集終了

保証金

礼金

更新料

償却費

竣工

1989年1月

構造

SRC

規模

地上7階

トイレ

男女別

空調

個別空調

エレベーター

セキュリティ

駐車場

耐震

新耐震基準

基準階天井高

2430mm

空室延床面積

44.55坪

最寄駅

情報更新日

2026/01/21

三番町ABCビルのテナント募集中区画

階数 面積 賃料(共益費含む) 保証金 入居可能日 検討リスト 詳細
1 44.55坪 735,075円/月(16,500円/坪) 400万円
…新着物件

アクセス

三番町ABCビルの物件情報

三番町ABCビル(千代田区三番町)は市ヶ谷駅(A3番出口)から徒歩8分の賃貸オフィスです。
外壁はグレーのタイル張りでシンプルながら、建物が立体感のある構造のため、上質で洗練された印象を与える外観です。エントランス~エレベーターホールは暖色系のライトで高級感があります。基準階は66.08坪で1フロア1テナント仕様。お手洗いは各階男女別で設置されています。2016年にリニューアルを行っているため全体的に綺麗で、快適にご使用頂けるかと思います。
三番町ABCビルは市ヶ谷駅と半蔵門駅の利用が可能です。それぞれ徒歩8分程度とやや距離はございますが、ビル周辺にはコンビニや飲食店が点在しています。
三番町ABCビルは市ヶ谷駅(A3番出口)の他に半蔵門駅(5番出口)徒歩8分、九段下駅(1番出口)徒歩10分で利用も可能です。

近隣のエリア・駅から探す