三番町ABCビルのテナント募集中区画
| 階数 | 面積 | 賃料(共益費含む) | 保証金 | 入居可能日 | 検討リスト | 詳細 |
|---|---|---|---|---|---|---|
| 1 | 44.55坪 | 735,075円/月(16,500円/坪) | 400万円 | 即 |
…新着物件
アクセス
三番町ABCビルの物件情報
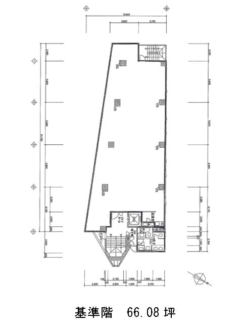
三番町ABCビル(千代田区三番町)は市ヶ谷駅(A3番出口)から徒歩8分の賃貸オフィスです。外壁はグレーのタイル張りでシンプルながら、建物が立体感のある構造のため、上質で洗練された印象を与える外観です。エントランス~エレベーターホールは暖色系のライトで高級感があります。基準階は66.08坪で1フロア1テナント仕様。お手洗いは各階男女別で設置されています。2016年にリニューアルを行っているため全体的に綺麗で、快適にご使用頂けるかと思います。
三番町ABCビルは市ヶ谷駅と半蔵門駅の利用が可能です。それぞれ徒歩8分程度とやや距離はございますが、ビル周辺にはコンビニや飲食店が点在しています。三番町ABCビルは市ヶ谷駅(A3番出口)の他に半蔵門駅(5番出口)徒歩8分、九段下駅(1番出口)徒歩10分で利用も可能です。

