3階は現在募集がありません
石油健保ビル 3階
物件概要
石油健保ビルのテナント募集中区画
現在、空室がございません。
アクセス
石油健保ビルの物件情報
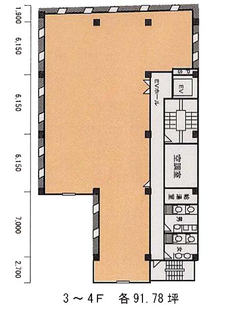
石油健保ビル(千代田区三番町)は半蔵門駅(5番出口)から徒歩7分の賃貸オフィスです。1989年竣工で、新耐震基準に適合した地上5階建てのオフィスビルです。重厚感を感じられるエントランス、エレベーターホール内にエレベーターは1基設置されています。基準階面積は約90坪。貸室内はフリーアクセス床となっているので、配線しやすいフロアで、男女別トイレ、個別空調+セントラル空調を完備。機械警備導入で安心してお仕事が出来ます。徒歩圏内にはコンビニエンスストアや公園がございます。石油健保ビルは半蔵門駅(5番出口)の他に市ヶ谷駅(A3番出口)徒歩11分、九段下駅(1番出口)徒歩12分で利用も可能です。

