Inter ACTビルのテナント募集中区画
| 階数 | 面積 | 賃料(共益費含む) | 保証金 | 入居可能日 | 検討リスト | 詳細 |
|---|---|---|---|---|---|---|
| 3 | 27.25坪 | 449,625円/月(16,500円/坪) | 220万円 | 2026年3月上旬 |
…新着物件
アクセス
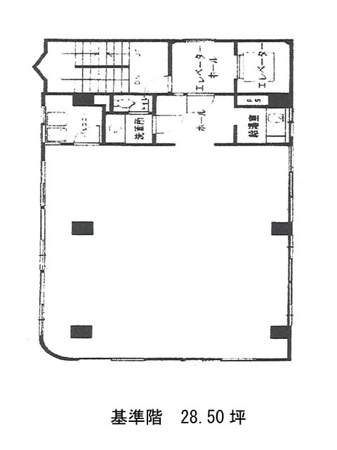
Inter ACTビルの物件情報
Inter ACTビル(千代田区神田佐久間町)は秋葉原駅(1番出口)から徒歩4分の賃貸オフィスです。Inter ACTビルは秋葉原駅(1番出口)の他に岩本町駅(A4番出口)徒歩6分、浅草橋駅(西口)徒歩7分で利用も可能です。

