Inter ACTビル 3階
物件概要
物件番号
397-00070-20物件名
Inter ACTビル所在地
- 東京都千代田区神田佐久間町3-21-1
- アクセスマップ
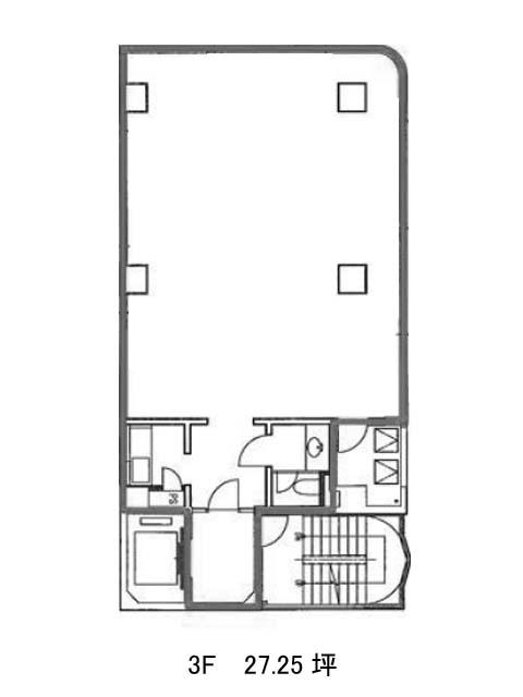
面積
27.25坪賃料(共益費含)
月額449,625円(16,500円/坪)
入居日
2026年3月上旬保証金
2,207,250円礼金
1ケ月更新料
新1ケ月償却費
1ケ月竣工
1987年7月構造
RC規模
地上6階/地下1階トイレ
男女共用空調
個別空調エレベーター
有セキュリティ
有駐車場
有耐震
新耐震基準基準階天井高
2420mm空室延床面積
54.50坪情報更新日
2026/03/04Inter ACTビルのテナント募集中区画
| 階数 | 面積 | 賃料(共益費含む) | 保証金 | 入居可能日 | 検討リスト | 詳細 |
|---|---|---|---|---|---|---|
| 3 | 27.25坪 | 449,625円/月(16,500円/坪) | 220万円 | 2026年3月上旬 | ||
| 4 | 27.25坪 | 479,600円/月(17,600円/坪) | 237万円 | 2026年6月 |
…新着物件
Inter ACTビルのアクセス
Inter ACTビルの物件情報
Inter ACTビル(千代田区神田佐久間町)は秋葉原駅(1番出口)から徒歩4分の賃貸オフィスです。Inter ACTビルは秋葉原駅(1番出口)の他に岩本町駅(A4番出口)徒歩6分、浅草橋駅(西口)徒歩7分で利用も可能です。

