大手町NSビルのテナント募集中区画
| 階数 | 面積 | 賃料(共益費含む) | 保証金 | 入居可能日 | 検討リスト | 詳細 |
|---|---|---|---|---|---|---|
| 2 | 41.36坪 | 応相談(応相談) | 応相談 | 2026年3月上旬 |
…新着物件
アクセス
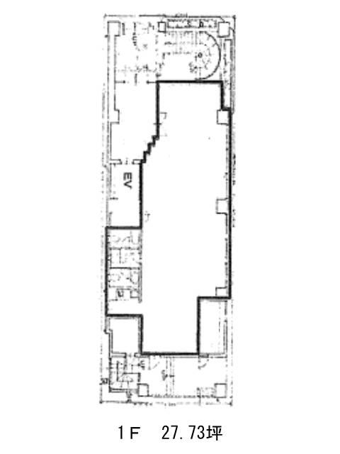
大手町NSビルの物件情報
大手町NSビル(千代田区内神田)は神田駅(西口)から徒歩5分の賃貸オフィスです。重厚感ある石造りの外観が印象的なこちらの物件。角地に立地し、開放感と視認性を兼ね備えています。ビル周囲には丁寧に整えられた植栽も配されており、都市部ながらも落ち着いた雰囲気を演出。貸室は10坪台〜40坪台と、コンパクトオフィスから中規模ニーズまで幅広く対応可能です。周辺は神田エリアらしく飲食店が豊富で、ランチや就業後の時間も充実。利便性と品の良さを両立したオフィスをお探しの方におすすめの一棟です。大手町NSビルは神田駅(西口)の他に大手町駅(A2番出口)徒歩5分、新日本橋駅(2番出口)徒歩8分で利用も可能です。

