大手町NSビル 2階
物件概要
物件番号
423-00198-40物件名
大手町NSビル所在地
- 東京都千代田区内神田2-5-1
- アクセスマップ
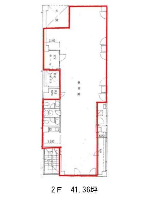
面積
41.36坪賃料(共益費含)
:応相談応相談
入居日
2026年3月上旬保証金
応相談礼金
なし更新料
新1ケ月償却費
なし竣工
1991年5月構造
RC規模
地上6階/地下1階トイレ
男女別空調
個別空調エレベーター
有セキュリティ
有駐車場
無耐震
新耐震基準基準階天井高
空室延床面積
41.36坪情報更新日
2025/11/05大手町NSビルのテナント募集中区画
| 階数 | 面積 | 賃料(共益費含む) | 保証金 | 入居可能日 | 検討リスト | 詳細 |
|---|---|---|---|---|---|---|
| 2 | 41.36坪 | 応相談(応相談) | 応相談 | 2026年3月上旬 |
…新着物件
アクセス
大手町NSビルの物件情報
大手町NSビル(千代田区内神田)は神田駅(西口)から徒歩5分の賃貸オフィスです。重厚感ある石造りの外観が印象的なこちらの物件。角地に立地し、開放感と視認性を兼ね備えています。ビル周囲には丁寧に整えられた植栽も配されており、都市部ながらも落ち着いた雰囲気を演出。貸室は10坪台〜40坪台と、コンパクトオフィスから中規模ニーズまで幅広く対応可能です。周辺は神田エリアらしく飲食店が豊富で、ランチや就業後の時間も充実。利便性と品の良さを両立したオフィスをお探しの方におすすめの一棟です。大手町NSビルは神田駅(西口)の他に大手町駅(A2番出口)徒歩5分、新日本橋駅(2番出口)徒歩8分で利用も可能です。

