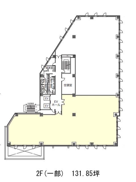
2階は現在募集がありません
興和二番町ビル 2階
物件概要
興和二番町ビルのテナント募集中区画
現在、空室がございません。
アクセス
興和二番町ビルの物件情報
興和二番町ビル(千代田区二番町)は麹町駅(3番出口)から徒歩2分の賃貸オフィスです。1988年竣工。新耐震基準に適合した地上6階建てのオフィスビルです。基準階面積は約270坪。広い貸室内は、採光が良く、明るい開放感のあるオフィスとなるでしょう。またフリーアクセス床となっているので、配線しやすいフロアです。有人警備と機械警備が併用されているため、セキュリティ面でも大変安心です。またビルは24時間利用可能で駐車場も併設されております。男女別トイレや給湯スペースは綺麗に保たれており、清潔感があります。興和二番町ビルは麹町駅(3番出口)の他に半蔵門駅(出口1)徒歩5分、市ヶ谷駅(3番出口)徒歩10分で利用も可能です。

