3階は現在募集がありません
京橋MIDビル 3階
物件概要
京橋MIDビルのテナント募集中区画
現在、空室がございません。
アクセス
京橋MIDビルの物件情報
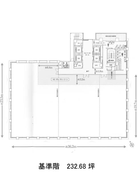
京橋MIDビル(中央区京橋)は宝町駅(A2番出口)から徒歩1分の賃貸オフィスです。交差点の角に建ち、柱と窓のデザインがモダンな印象を持つ地上12階のビルとなります。オフィスはすっきりとした無柱空間となり、三面の窓からは採光を取り入れながらも、構造柱がボックス庇の役割をしております。非常用発電・駐車場・個別空調・男女別トイレを備えております。吹抜けの広々とした共用部や、屋上のテラスがあり来客にもおもてなしの心を感じて頂けるでしょう。京橋MIDビルは宝町駅(A2番出口)の他に京橋駅(4番出口)徒歩4分、八丁堀駅(A3番出口)徒歩6分で利用も可能です。

