3階は現在募集がありません
1フロア募集区画あり

銀座小寺ビル 3階

前の写真 次の写真

物件概要

物件番号

634-01055-10

物件名

銀座小寺ビル

所在地

面積

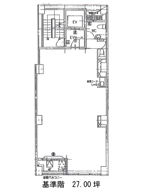
27.00坪

賃料(共益費含)


入居日

募集終了

保証金

礼金

更新料

償却費

竣工

2009年7月

構造

RC

規模

地上6階/地下1階

トイレ

不明

空調

個別空調

エレベーター

セキュリティ

駐車場

耐震

新耐震基準

基準階天井高

2600mm

空室延床面積

27.00坪

最寄駅

情報更新日

2025/11/10

銀座小寺ビルのテナント募集中区画

階数 面積 賃料(共益費含む) 保証金 入居可能日 検討リスト 詳細
5 27.00坪 579,150円/月(21,450円/坪) 267万円
…新着物件

アクセス

銀座小寺ビルの物件情報

銀座小寺ビル(中央区銀座)は築地市場駅(A3番出口)から徒歩4分の賃貸オフィスです。
銀座エリアでコンパクトオフィスをお探しの方には、当ビルも検討候補に加えたい一棟です。
石材を基調とした外観と共用部が、堅実で信頼感のある印象を演出。
基準階は約27坪とコンパクトながら、男女別トイレや給湯スペースをしっかり備え、働きやすさに配慮された設計です。エレベーターホールも独立しており、来客対応や動線面でも安心感があります。整った長方形の貸室はレイアウト自由度が高く、少人数体制の拠点や士業・コンサルなどの業種にもフィット。本物件が位置するのは、新橋のビジネスエリアとしての落ち着きと、華やかな銀座エリアの両方を享受できる絶妙な立地。利便性と品の良さを兼ね備えた、バランス感覚のある物件です。
銀座小寺ビルは築地市場駅(A3番出口)の他に汐留駅(3番出口)徒歩6分、東銀座駅(4番出口)徒歩6分で利用も可能です。

近隣のエリア・駅から探す