7階は現在募集がありません
押谷ビル 7階
物件概要
押谷ビルのテナント募集中区画
現在、空室がございません。
アクセス
押谷ビルの物件情報
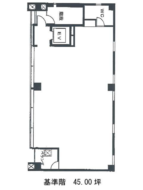
押谷ビル(中央区銀座)は銀座一丁目駅(11番出口)から徒歩4分の賃貸オフィスです。1975年竣工、外観は淡いブラウンのタイル張りで、とてもシンプルな構造になっております。基準階は約45坪あり、室内は長方形に近い形をしているため、比較的レイアウトは組みやすいでしょう。ビル内に駐車場はありませんが、近くにパーキングがあるため、社用車を使う場合も便利です。また周辺には、コンビニや飲食店などが複数あるためとても利便性が高いです。押谷ビルは銀座一丁目駅(11番出口)の他に宝町駅(A1番出口)徒歩4分、東銀座駅(A7番出口)徒歩5分で利用も可能です。

