10階は現在募集がありません
マロニエ通り銀座館 10階
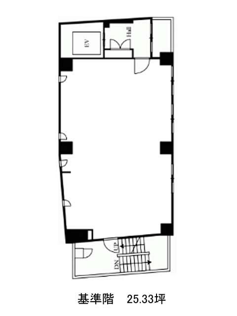
物件概要
マロニエ通り銀座館のテナント募集中区画
現在、空室がございません。
アクセス
マロニエ通り銀座館の物件情報
マロニエ通り銀座館(中央区銀座)は銀座一丁目駅(11番出口)から徒歩2分の賃貸オフィスです。マロニエ通り銀座館は銀座一丁目駅(11番出口)の他に東銀座駅(A8番出口)徒歩3分、銀座駅(A12番出口)徒歩4分で利用も可能です。

