2階 南は現在募集がありません
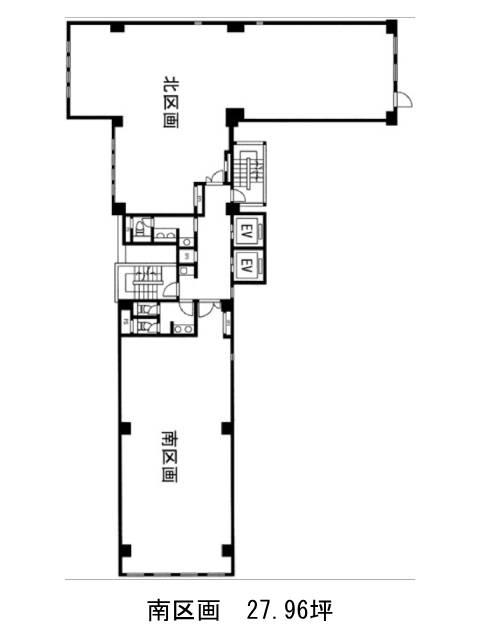
銀座ウィングビル(南ウイング) 2階 南
物件概要
銀座ウィングビル(南ウイング)のテナント募集中区画
現在、空室がございません。
アクセス
銀座ウィングビル(南ウイング)の物件情報
銀座ウィングビル(南ウイング)(中央区銀座)は銀座一丁目駅(10番出口)から徒歩3分の賃貸オフィスです。銀座ウィングビル(南ウイング)は銀座一丁目駅(10番出口)の他に宝町駅(A3番出口)徒歩4分、京橋駅(3番出口)徒歩5分で利用も可能です。

