6階は現在募集がありません
紙パルプ会館 6階
物件概要
紙パルプ会館のテナント募集中区画
現在、空室がございません。
アクセス
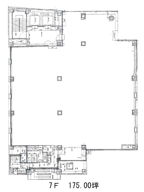
紙パルプ会館の物件情報
紙パルプ会館(中央区銀座)は東銀座駅(A7番出口)から徒歩2分の賃貸オフィスです。1993年竣工、地上11階地下3階建てSRC造のビルです。貸室は大小様々で、10坪台のものや80坪台のものがそろいます。一部一括貸しができる箇所もございます。設備仕様として、EV・個別空調・OAフロア・貸室外の男女別トイレ・非常階段2箇所があります。セキュリティとして機械警備が導入されています。松屋通り沿いの角地に建ち、周辺は画廊やアパレル、ジュエリーショップ等が多く、おしゃれな雰囲気のエリアです。紙パルプ会館は東銀座駅(A7番出口)の他に銀座駅(A12番出口)徒歩3分、銀座一丁目駅(11番出口)徒歩4分で利用も可能です。

