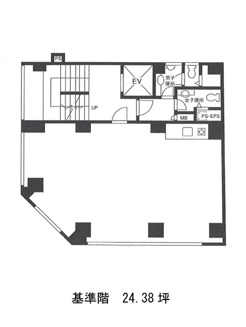
9階は現在募集がありません
ニュー銀座ビル 9階
物件概要
ニュー銀座ビルのテナント募集中区画
現在、空室がございません。
アクセス
ニュー銀座ビルの物件情報
ニュー銀座ビル(中央区銀座)は東銀座駅(A7番出口)から徒歩2分の賃貸オフィスです。ニュー銀座ビルは東銀座駅(A7番出口)の他に銀座一丁目駅(11番出口)徒歩4分、銀座駅(A12番出口)徒歩5分で利用も可能です。

