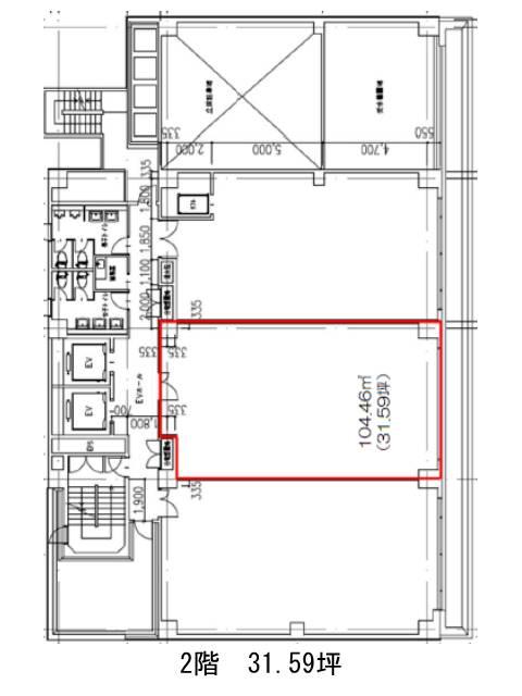
2階は現在募集がありません
銀座東洋ビル 2階
物件概要
銀座東洋ビルのテナント募集中区画
現在、空室がございません。
アクセス
銀座東洋ビルの物件情報
銀座東洋ビル(中央区銀座)は宝町駅(A3番出口)から徒歩3分の賃貸オフィスです。エントランスからEVホールへ続く通路は、アーチ状の広々とした天井で開放感があります。共用部はシックなモノトーンでまとめられ、落ち着きのあるデザインです。室内は柱が中央に無い整形な間取りで、レイアウトの自由度が高いでしょう。空調は個別、機械式警備、駐車場・EV2基・男女別トイレを備えております。周辺にはカフェや飲食店が多く、ランチや打合せ等便利にご利用頂けるでしょう。住所は中央区銀座一丁目となります。銀座東洋ビルは宝町駅(A3番出口)の他に銀座一丁目駅(10番出口)徒歩4分、京橋駅(1番出口)徒歩5分で利用も可能です。

