5階は現在募集がありません
セルコンスクエア 5階
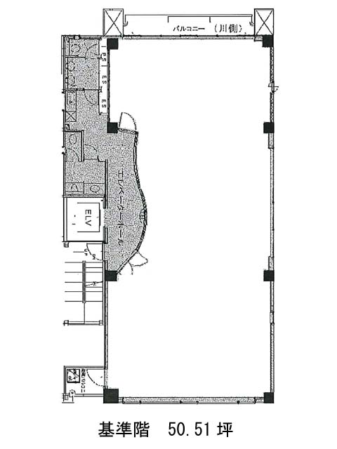
物件概要
セルコンスクエアのテナント募集中区画
現在、空室がございません。
アクセス
セルコンスクエアの物件情報
セルコンスクエア(中央区新川)は八丁堀駅(A4番出口)から徒歩4分の賃貸オフィスです。2013年竣工の物件ということもあり、建物自体がとてもk綺麗です。外観は全体的にグレーを基調としており、とても落ち着いた印象があります。エレベーターホールは暖色系の色に包まれていて、とても暖かみのある空間となっております。また周辺には、コンビニや飲食店などが複数あるためとても利便性が高いです。ビル内のトイレは男女別となっており、駐車場はありませんが、近くにパーキングがあるため、社用車を使う場合も便利です。セルコンスクエアは八丁堀駅(A4番出口)の他に茅場町駅(1番出口)徒歩4分、水天宮前駅(2番出口)徒歩10分で利用も可能です。

