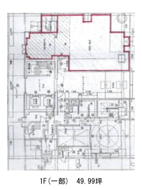
1階は現在募集がありません
エイハ新川 1階
物件概要
エイハ新川のテナント募集中区画
現在、空室がございません。
アクセス
エイハ新川の物件情報
エイハ新川(中央区新川)は茅場町駅(1番出口)から徒歩5分の賃貸オフィスです。
永代通りから少し入ったところに建てられている12階建てのビルです。外観は、凹型のデザインが印象的な視認性の高い物件です。間取りは長方形に近い形状で窓が大きく採光が良好です。OAフロア・個別空調・給湯・男女別トイレなどを備えています。また、セキュリティは機械警備システムを導入しているので安心です。周辺にはコンビニやカフェ、郵便局も近くにあり利便性の高いエリアです。
エイハ新川は茅場町駅(1番出口)の他に八丁堀駅(A4番出口)徒歩6分、水天宮前駅(2番出口)徒歩9分で利用も可能です。

