4階は現在募集がありません
1フロア募集区画あり

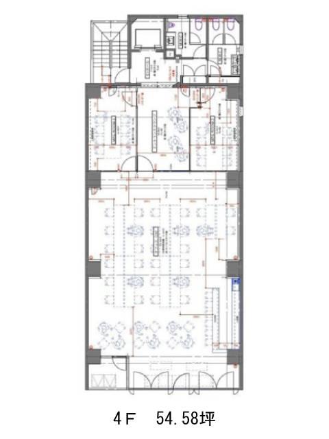
東日本橋EXビル 4階

前の写真 次の写真

物件概要

物件番号

642-00005-40

物件名

東日本橋EXビル

所在地

面積

54.58坪

賃料(共益費含)


入居日

募集終了

保証金

礼金

更新料

償却費

竣工

1988年1月

構造

SRC

規模

地上8階

トイレ

男女別

空調

個別空調

エレベーター

セキュリティ

駐車場

耐震

新耐震基準

基準階天井高

2450mm

空室延床面積

53.25坪

最寄駅

情報更新日

2026/01/21

東日本橋EXビルのテナント募集中区画

階数 面積 賃料(共益費含む) 保証金 入居可能日 検討リスト 詳細
3 53.25坪 937,200円/月(17,600円/坪) 応相談
…新着物件

アクセス

東日本橋EXビルの物件情報

東日本橋EXビル(中央区東日本橋)は馬喰横山駅(A3番出口)から徒歩2分の賃貸オフィスです。
東日本橋中央通りに面して建てられている8階建てのビルです。1988年竣工ですが、2019年12月にエントランスと共用部をリニューアル済です。外観は白いタイル張りで清潔感があります。貸室内はOAフロア、個別空調、トイレは男女別で室外に設置されています。セキュリティは機械警備を導入しているので安心です。周辺には飲食店や喫茶店、コンビニやスーパーがあるので、いつでも食事が気軽に出来ます。
東日本橋EXビルは馬喰横山駅(A3番出口)の他に東日本橋駅(A4番出口)徒歩3分、馬喰町駅(1番出口)徒歩4分で利用も可能です。

近隣のエリア・駅から探す