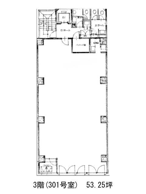
東日本橋EXビル 3階
物件概要
物件番号
642-00005-84物件名
東日本橋EXビル所在地
- 東京都中央区東日本橋3-4-18
- アクセスマップ
面積
53.25坪賃料(共益費含)
月額937,200円(17,600円/坪)
入居日
即保証金
応相談礼金
なし更新料
なし償却費
なし竣工
1988年1月構造
SRC規模
地上8階トイレ
男女別空調
個別空調エレベーター
有セキュリティ
駐車場
無耐震
新耐震基準基準階天井高
2450mm空室延床面積
53.25坪情報更新日
2026/02/18東日本橋EXビルのテナント募集中区画
| 階数 | 面積 | 賃料(共益費含む) | 保証金 | 入居可能日 | 検討リスト | 詳細 |
|---|---|---|---|---|---|---|
| 3 | 53.25坪 | 937,200円/月(17,600円/坪) | 応相談 | 即 |
…新着物件
東日本橋EXビルのアクセス
東日本橋EXビルの物件情報
東日本橋EXビル(中央区東日本橋)は馬喰横山駅(A3番出口)から徒歩2分の賃貸オフィスです。東日本橋中央通りに面して建てられている8階建てのビルです。1988年竣工ですが、2019年12月にエントランスと共用部をリニューアル済です。外観は白いタイル張りで清潔感があります。貸室内はOAフロア、個別空調、トイレは男女別で室外に設置されています。セキュリティは機械警備を導入しているので安心です。周辺には飲食店や喫茶店、コンビニやスーパーがあるので、いつでも食事が気軽に出来ます。東日本橋EXビルは馬喰横山駅(A3番出口)の他に東日本橋駅(A4番出口)徒歩3分、馬喰町駅(1番出口)徒歩4分で利用も可能です。

