5階は現在募集がありません
兜町八千代ビル 5階
物件概要
兜町八千代ビルのテナント募集中区画
現在、空室がございません。
アクセス
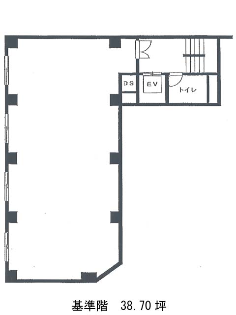
兜町八千代ビルの物件情報
兜町八千代ビル(中央区日本橋兜町)は茅場町駅(12番出口)から徒歩4分の賃貸オフィスです。兜町八千代ビルは茅場町駅(12番出口)の他に八丁堀駅(A5番出口)徒歩6分、日本橋駅(D1番出口)徒歩6分で利用も可能です。

