8階は現在募集がありません

兜町八千代ビル 8階

前の写真 次の写真

物件概要

物件番号

645-00019-80

物件名

兜町八千代ビル

所在地

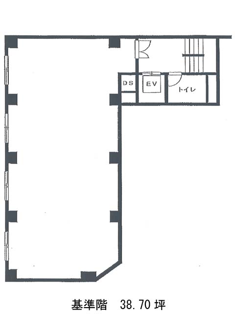
面積

38.70坪

賃料(共益費含)


入居日

募集終了

保証金

礼金

更新料

償却費

竣工

1966年5月

構造

SRC

規模

地上9階/地下1階

トイレ

男女別

空調

個別空調

エレベーター

セキュリティ

駐車場

耐震

旧耐震基準

基準階天井高

空室延床面積

最寄駅

情報更新日

2023/03/24

兜町八千代ビルのテナント募集中区画

現在、空室がございません。

アクセス

兜町八千代ビルの物件情報

兜町八千代ビル(中央区日本橋兜町)は茅場町駅(12番出口)から徒歩4分の賃貸オフィスです。
兜町八千代ビルは茅場町駅(12番出口)の他に八丁堀駅(A5番出口)徒歩6分、日本橋駅(D1番出口)徒歩6分で利用も可能です。

近隣のエリア・駅から探す