4階は現在募集がありません
兜町サイトウビル 4階
物件概要
兜町サイトウビルのテナント募集中区画
現在、空室がございません。
アクセス
兜町サイトウビルの物件情報
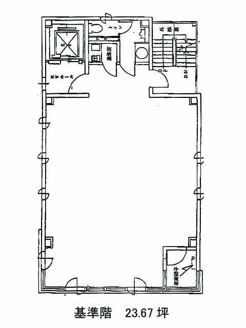
兜町サイトウビル(中央区日本橋兜町)は茅場町駅(12番出口)から徒歩4分の賃貸オフィスです。さくら通り沿いに建つ、7階建てのビルです。白いパネルで清潔感のある外観です。同じブロックに中央警察署、日本橋消防署、阪本小学校があり、治安の良い環境です。基準階は23.67坪の広さがあり、長方形の無柱空間で、レイアウトしやすい間取りになっています。給湯室とトイレが室内に設置されていて、光ケーブルに対応しています。近隣に阪本町公園があり、地域住民や近隣で働く人たちの憩いの場として利用されています。兜町サイトウビルは茅場町駅(12番出口)の他に日本橋駅(D1番出口)徒歩5分、八丁堀駅(A5番出口)徒歩7分で利用も可能です。

