6階は現在募集がありません
PMO EX 日本橋茅場町 6階
物件概要
PMO EX 日本橋茅場町のテナント募集中区画
現在、空室がございません。
アクセス
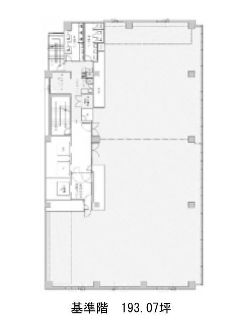
PMO EX 日本橋茅場町の物件情報
PMO EX 日本橋茅場町(中央区日本橋茅場町)は茅場町駅(12番出口)から徒歩3分の賃貸オフィスです。2022年7月竣工の新築ビルです。モノトーンでスタイリッシュな外観と共用部をしています。エントランス周りに植栽を多く植え、道行く人の目を和ませるでしょう。駅直結で案内しやすく、エントランスサロンは来客時の対応にご利用頂けます。190坪を超える貸室もあり大規模オフィスをお探しの方に良いでしょう。貸室内は自動調光・システム天井・個別空調等の設備で快適性を高めます。エントランス・EV・貸室前と3段階のセキュリティを導入しています。PMO EX 日本橋茅場町は茅場町駅(12番出口)の他に日本橋駅(D1番出口)徒歩6分、八丁堀駅(A5番出口)徒歩6分で利用も可能です。

